|
玉溪市人民医院(以下简称“采购人”)按照《中华人民共和国政府采购法》和《政府采购非招标采购方式管理办法》等法律、法规的有关规定,于2019年7月26日(周五)14:30在玉溪市人民医院后勤管理科会议室召开院内竞争性谈判采购会议。兹邀请符合相关资格条件、具有完成本项目能力的供应商(以下简称“投标人”)参加。
1、项目内容及预算:
1.1采购项目:房屋外墙清洗
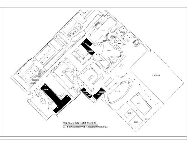
1.2项目范围:玉溪市人民医院内外墙面为瓷砖建筑物(门诊大楼、老供应室楼、制剂楼、老总务楼)的外墙面清洗。外墙清洗建筑物的位置详见附图。
1.3付款方式:合同范围内的外墙清洗全部完成后全额付款。
1.4本项目的上限控制价为82011.41元。
2、供应商资格条件:
2.1投标人须在中国境内注册,能在国内合法提供采购内容及其相应服务的企业,持有效的营业执照、安全生产许可证、组织机构代码证、税务登记证、法定代表人授权书、法定代表人身份证明书。参加本次采购活动前三个月内依法缴纳税收和社会保障资金的证明材料(成立未满三个月的,提供成立以来的税收和社保资金缴纳凭证或相关情况说明;依法免税或不需要缴纳社会保障资金的供应商,应提供相应证明文件);参加本次采购活动前3年内在经营活动中没有重大违法记录的书面声明;无重大违法失信不良信用记录查询结果网站截图;提供至少一个近两年内的业绩证明材料(与招标人签订的合同书原件或中标通知书原件)。
2.2投标人须持有外墙清洗的作业人员的《高空作业证》(复印件(加盖公章))。
2.3本次采购不接受联合体投标。
3、注意事项
3.1凡与本项目有关的通知,玉溪市人民医院将在“玉溪市人民医院网”、“玉溪市政府采购网”发布公告的形式送达所有与通知有关的潜在投标人,而不再用其他方式通知,请各投标人注意随时留意网站公告,因投标人不留意网站公告,导致项目废标的由投标人自负,采购人不予承担任何责任。
3.2本采购项目无需提前报名,不用购买招标文件,但现场递交投标文件时时需交5000.00元投标保证金,成交方的投标保证金转为履约保证金,其他未成交方现场退还投标保证金。
3.3本采购项目不提供工程量清单,外墙清洗工程量由投标人自行现场勘查后计算,根据企业自身的情况,综合考虑各种风险后采用含税总价进行报价,竞标报价不得低于其企业成本价。竞标总报价包括完成采购范围内全部外墙瓷砖面清洗的全部费用。
3.4规范高空清洁作业,确保高空作业安全与工作质量,高空作业人员持证上岗,严格执行外墙清洗标准作业规程。
3.5安全责任:外墙清洗属高空危险作业,投标人若成交后外墙清洗时,须完善清洗作业人员自身的安全防护措施以及清洗周围区域内的安全防护,若因清洗发生自身的意外安全事故或对清洗周围区域内的行人、车辆等造成伤害的事故,均由投标清洗方自行负责。
3.6质量要求
3.6.1幕墙玻璃、镜面不锈钢 :表面清洁明亮,无污迹、手印、水迹。
3.6.2大理石、花岗岩 :表面清洁光亮,无污迹;光面材料纹理清晰、有光泽;毛面材料色泽凝重、无锈蚀斑痕。
3.6.3铝合金板 :表面清洁、光滑,无污垢和水垢,有光泽,有金属质感。
3.6.4面砖 :表面清洁,无污垢,色泽光亮、均匀。
3.6.5彩钢板等金属饰面板 :表面清洁,无水垢和污垢、有光泽。
3.6.6不锈钢 :表面清洁,色泽均匀,无印迹、污迹,有清晰的光泽。
3.6.7水泥:表面清洁,无明显污垢,色泽均匀、无色斑。
3.6.8绿化带:清洗完毕后无污染、无损伤。
3.6.9楼顶:平台设备无损坏等。
3.7采购会议开始时,投标人须提交针对本次采购会议的密封完好的标书(一正一副),同时准备好加盖公章的二次报价函。
4、采购单位基本情况
4.1联系人及电话:邓老师 2031413
4.2采购人地址:云南省玉溪市红塔区聂路21号。
附图:
 |